Лот 5.7.12.4
1-комнатные апартаменты
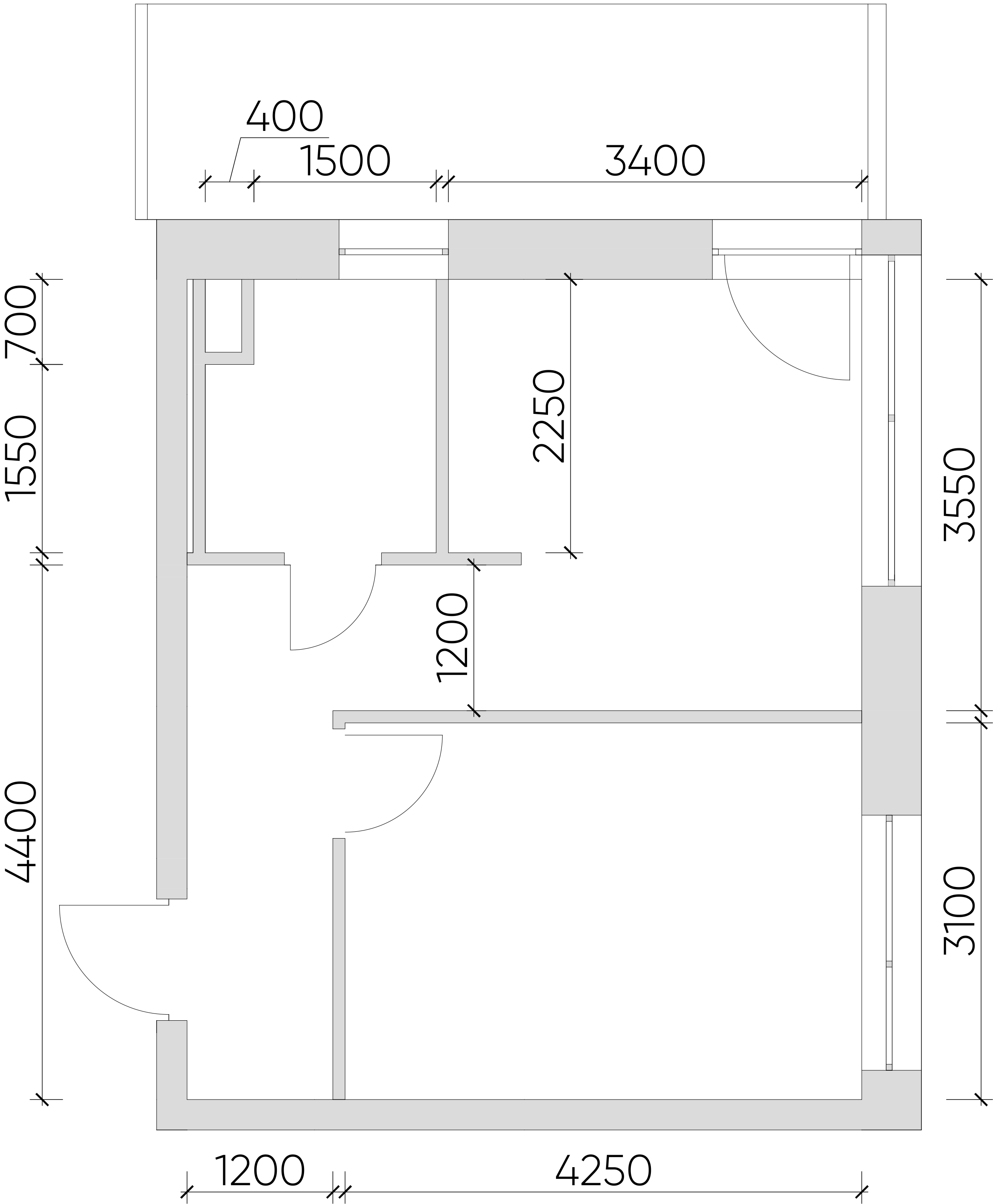
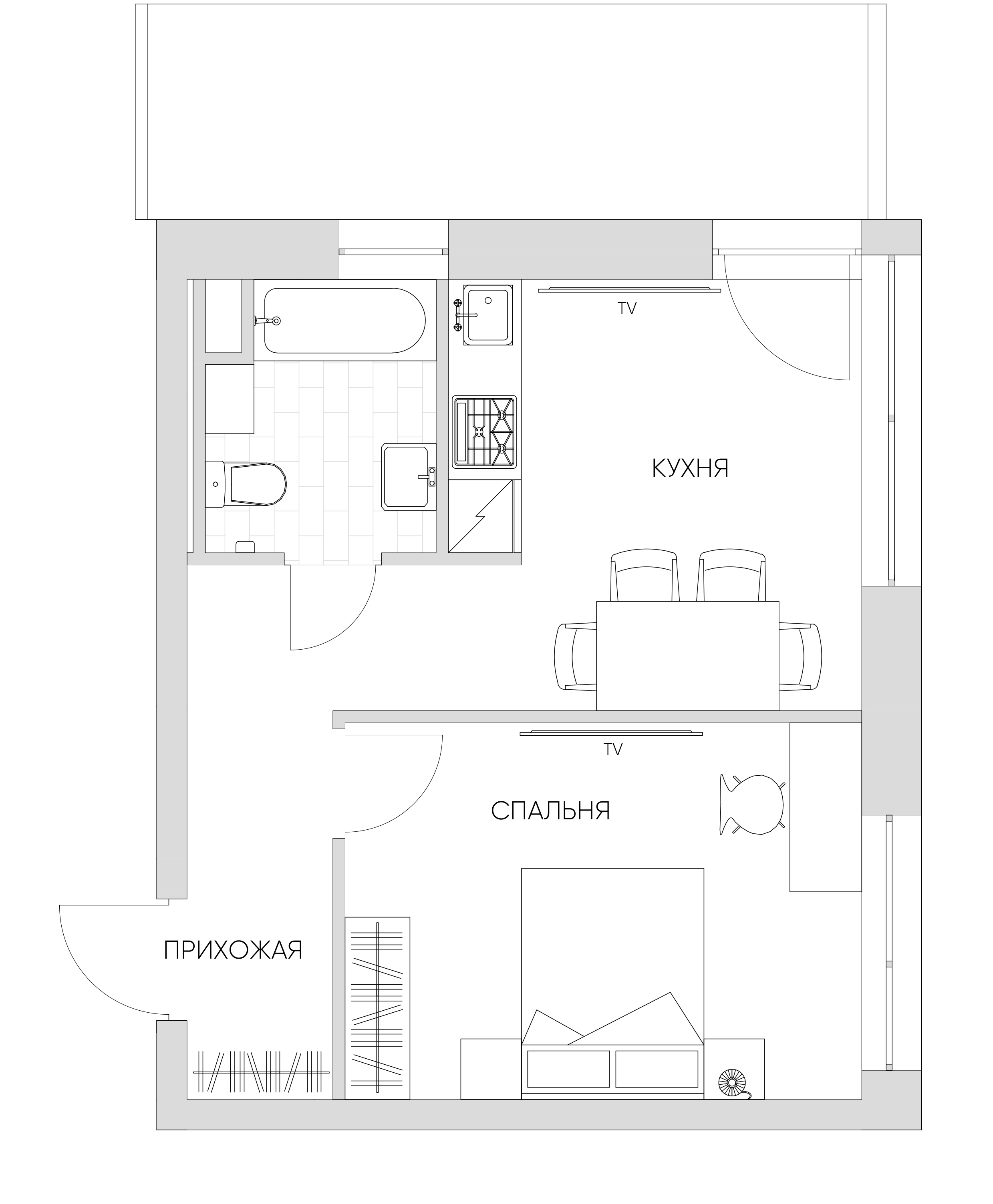
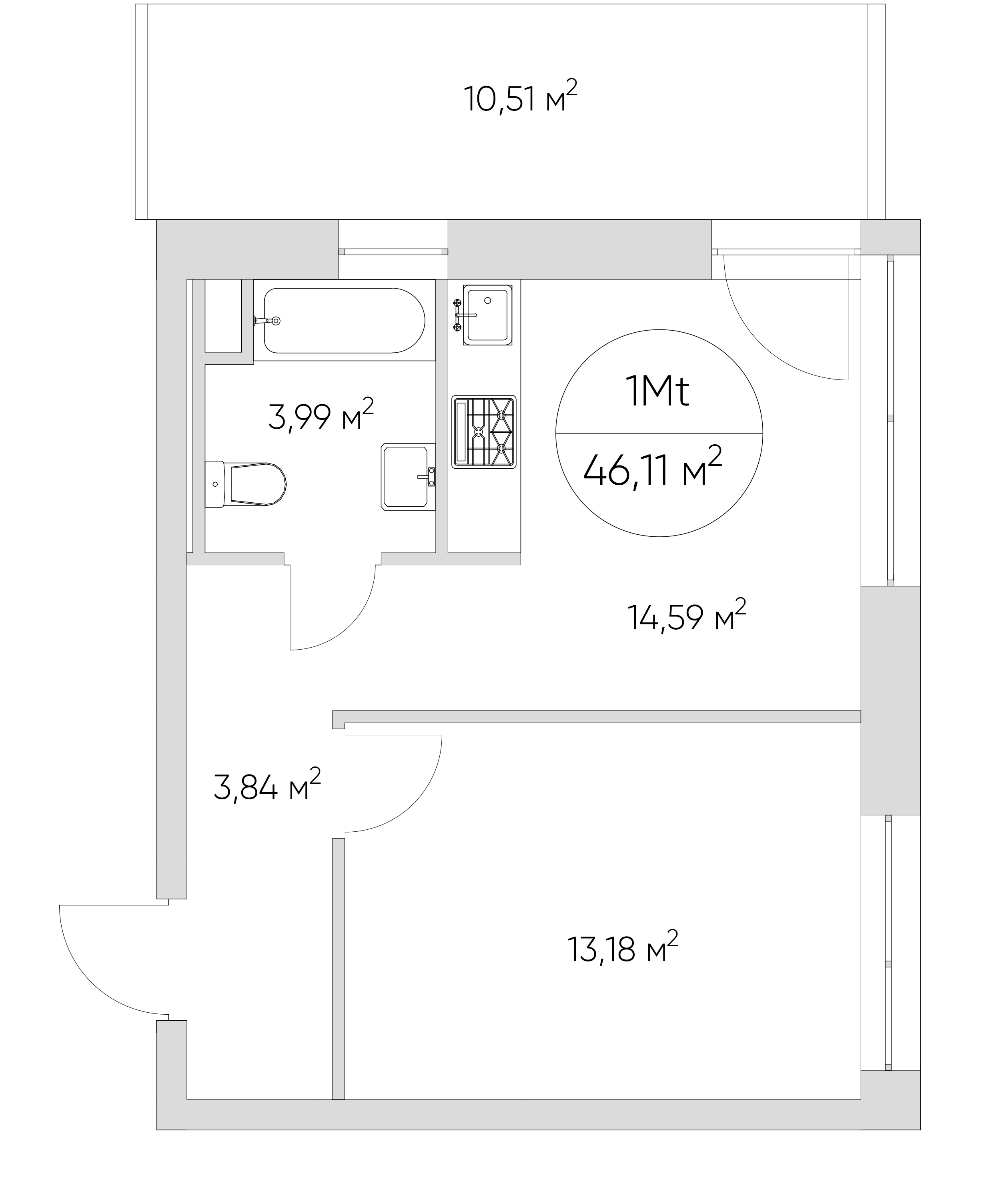
Площадь
46.1 м²
Этаж
12
Корпус
5
Высота потолка
3.00 м
Вид во двор
С/У с окном
Угловое остекление
Более 2-х окон
Уникальные планировки
17 083 507 ₽*
22 778 010 ₽
25%
Выберите условия покупки
Cтоимость
{{ pricef }} ₽
{{ priceSub1 }} ₽
{{ priceSubMore2 }} ₽
Условия покупки

Стандартная ипотека

Ипотека 5%*
Платеж первые 2 года

Ипотека 13.9%
на весь срок
на весь срок
Ипотека 0,11%*
Платеж первый год
Подробную информацию и
расчёт необходимо уточнять у менеджеров.
*не действует на лоты со спец. предложениями
*не действует на лоты со спец. предложениями
Условия покупки**
Банк
Стоимость
лота
лота
Первоначальный
взнос
взнос
Ежемесячный платеж
на льготный период
на льготный период
Процентная ставка
на льготный период
на льготный период
Ежемесячный платеж
после льготного периода
после льготного периода
Процентная ставка
после льготного периода
после льготного периода
Нет подходящих предложений. Попробуйте изменить параметры.
{{ offer.name }}
{{ formatCurrency(offer.propertyPrice) }}
40.1%
{{ formatCurrency(offer.stage1.payment) }}
{{ offer.stage1.rate }}%
на {{ offer.stage1.term }}
год
года
лет
{{ formatCurrency(offer.stage2.payment) }}
-
{{ offer.stage2.rate }}%
-
-
-
{{ formatCurrency(offer.stage2.payment) }}
{{ offer.stage2.rate }}%
{{ offer.name }}
Стоимость
лота {{ formatCurrency(offer.propertyPrice) }}
лота {{ formatCurrency(offer.propertyPrice) }}
Первоначальный
взнос 40.1%
взнос 40.1%
Ежемесячный платеж
на льготный период {{ offer.stage1 ? formatCurrency(offer.stage1.payment) : '-' }}
на льготный период {{ offer.stage1 ? formatCurrency(offer.stage1.payment) : '-' }}
Процентная ставка
на льготный период {{ offer.stage1 ? offer.stage1.rate + '%' : '-' }}
на льготный период {{ offer.stage1 ? offer.stage1.rate + '%' : '-' }}
Ежемесячный платеж
после льготного периода {{ subsidizedTerm > parseInt(offer.stage1?.term || 0) ? formatCurrency(offer.stage2?.payment) : '-' }}
после льготного периода {{ subsidizedTerm > parseInt(offer.stage1?.term || 0) ? formatCurrency(offer.stage2?.payment) : '-' }}
Процентная ставка
после льготного периода {{ subsidizedTerm > parseInt(offer.stage1?.term || 0) ? offer.stage2?.rate + '%' : '-' }}
после льготного периода {{ subsidizedTerm > parseInt(offer.stage1?.term || 0) ? offer.stage2?.rate + '%' : '-' }}
Стоимость лота
{{ formatCurrency(regularPrice) }}
Первоначальный взнос
{{ formatCurrency(standardDownPayment) }}
{{ standardDownPaymentPercent }}%
Срок кредита
{{ standardTerm }} {{ pluralizeYears(subsidizedTerm) }}
Банк
Процентная ставка
Ежемесячный платеж
Загружаем данные банков...
Ошибка загрузки данных
{{ error }}
Нет подходящих предложений. Попробуйте изменить параметры.
{{ offer.name }}
{{ offer.rate }}%
{{ formatCurrency(offer.monthlyPayment) }}
{{ offer.name }}
Процентная ставка:
{{ offer.rate }}%
Ежемесячный платеж:
{{ formatCurrency(offer.monthlyPayment) }}
Предложение
Стоимость лота
Первоначальный взнос
Ежемесячный платеж
Выплата остатка
Остаток платежа
{{ formatCurrency(offer.lotPrice) }}
{{ formatCurrency(offer.minDown) }}
{{ formatCurrency(offer.monthlyPayment) }}
{{ formatCurrency(offer.monthly15Payment) }} на 10 месяц
{{ formatCurrency(offer.monthly15Payment) }} на 10 месяц
{{ formatCurrency(offer.finalPayment) }}
Стоимость лота:
{{ formatCurrency(offer.lotPrice) }}
Первоначальный взнос:
{{ formatCurrency(offer.minDown) }}
Ежемесячный платеж:
{{ formatCurrency(offer.monthlyPayment) }}
{{ formatCurrency(offer.monthly15Payment) }} на 10 месяц
{{ formatCurrency(offer.monthly15Payment) }} на 10 месяц
Выплата остатка:
Остаток платежа:
{{ formatCurrency(offer.finalPayment) }}
Предполагаемая
доходность
В долгосрочной перспективе цены на апартаменты имеют тенденцию к
росту, что делает их одним
из самых привлекательных и надежных вариантов для инвестиций в будущее.
Собственная управляющая компания занимается сдачей апартамента в аренду и
подбором надежных арендаторов, а также обслуживанием апартаментов
(заселение/выселение гостей, клининг и пр).
Никакой головной боли.
Вы
только
получаете доход.
*доход при учете роста цены и сдачи апартамента в
аренду
Представленный вид, носит информационный характер и демонстрирует панораму с диапазона высот.
Не соответствует положению апартамента на этаже.
Не соответствует положению апартамента на этаже.